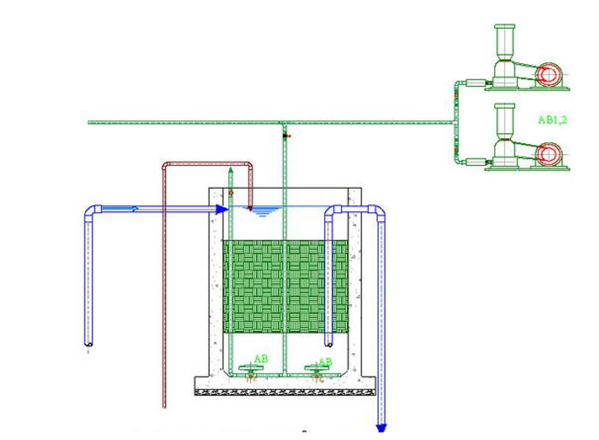
Bể Biofor là bể phản ứng cho các quá trình sinh học hiếu khí hoặc thiếu khí, sử dụng công nghệ sinh trưởng kết dính ứng dụng xử lý nước thải từ sinh hoạt cho đến công nghiệp.
Bể lọc sinh học hiếu khí Biofor là công trình xử lý sinh học sử dụng bùn hoạt tính để chuyển hóa các chất hữu cơ (gây ô nhiễm) thành các chất vô cơ (không gây ô nhiễm). đây là công trình quyết định hiệu quả xử lý của hệ thống xử lý nước thải.
Bể Biofor được sử dụng chủ yếu để loại bỏ các chất ô nhiễm gồm BOD, TSS và amoniac trong quá trình xử lý thứ cấp và giai đoạn xử lý sinh học.





